Planung
Daten für die Produktion
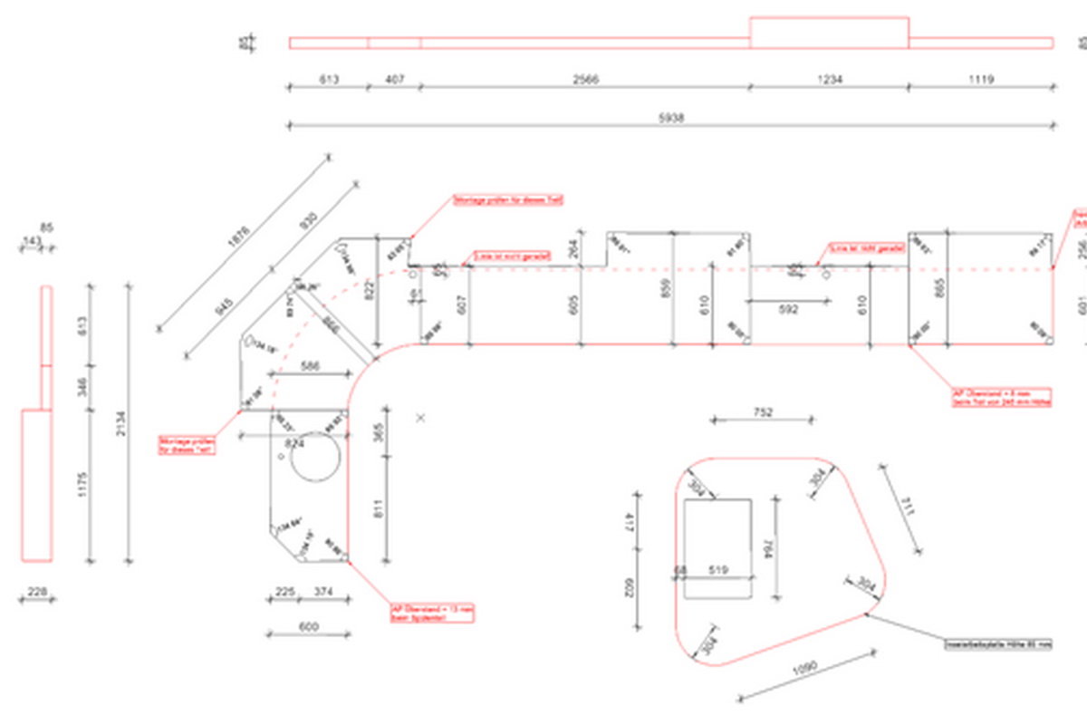
Die Planung von CAD-fertigen Daten für die Produktion von Küchenarbeitsplatten, Badverkleidungen und Innenausbau Arbeiten, umfasst die Erstellung detaillierter, präziser 3D-Modelle und Zeichnungen, die die genauen Masse, Formen und Schnittstellen beschreiben. Diese Daten werden dann verwendet, um die Werkteile in der Produktion exakt zu fertigen.
Schritte:
- Erhebung der Massdaten: Präzise Vermessung der Räume und -möbel (z.B. Arbeitsplatte, Ausschnitte für Spüle, Herd, Steckdosen).
- Erstellung des CAD-Modells: Design der zu produzierenden Werkteile mit CAD-Software, unter Berücksichtigung von Materialwahl (z.B. Granit, Quarz, Holz), Dicke, Kantenprofil und Ausschnitten.
- Berücksichtigung von Produktionsanforderungen: Integration von Fertigungstechniken, wie CNC-Fräsen oder Laserschneiden, in das CAD-Modell.
- Erstellung von Fertigungszeichnungen: Detaillierte 2D- oder 3D-Zeichnungen für die Produktion, die alle Masse, Schnittstellen und Toleranzen enthalten.
- Übergabe an die Produktion: Die CAD-Daten werden an die Fertigungsabteilung übermittelt, die sie für die präzise Herstellung der Werkteile verwendet.
Diese Vorgehensweise garantiert eine passgenaue, effiziente Fertigung und reduziert Fehlerquellen bei der Produktion.


